
Wohnanlage Altach Rheinstrasse
Haben Sie Fragen?
Kontaktieren Sie uns
Wilhelm+Mayer Bau GmbH
Dr.-Alfons-Heinzle-Straße 38
6840 Götzis

Modernes Wohnen mitten im Rheintal
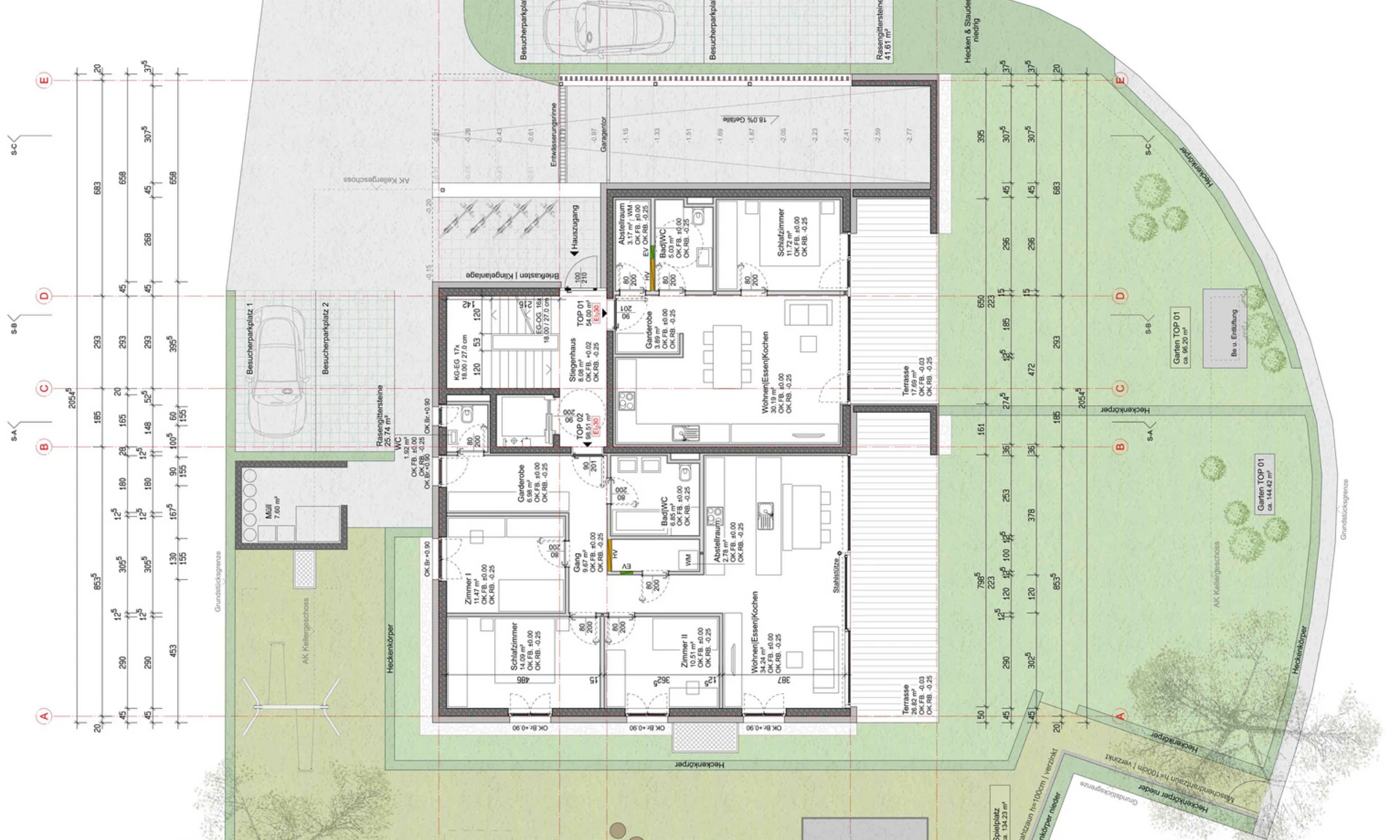
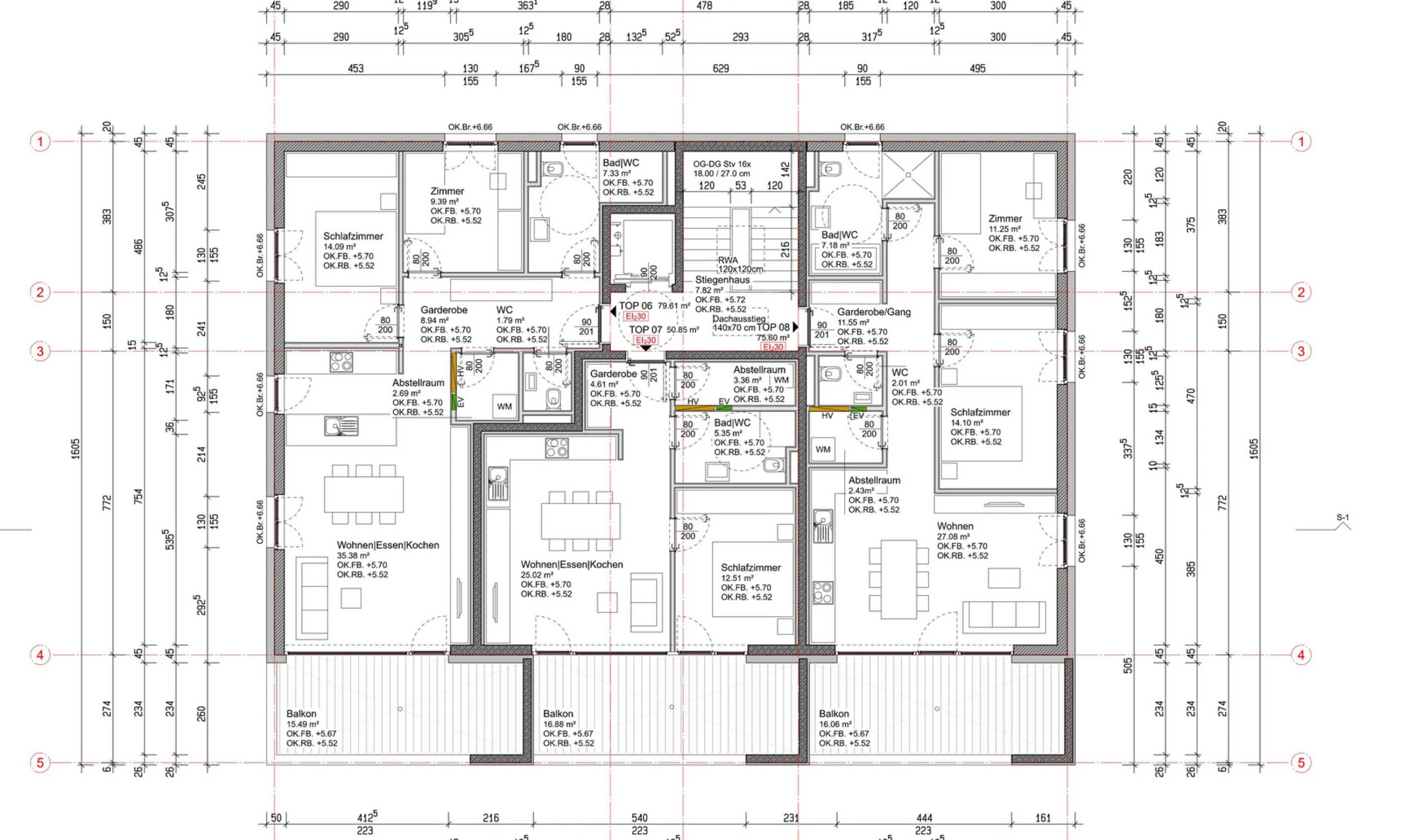
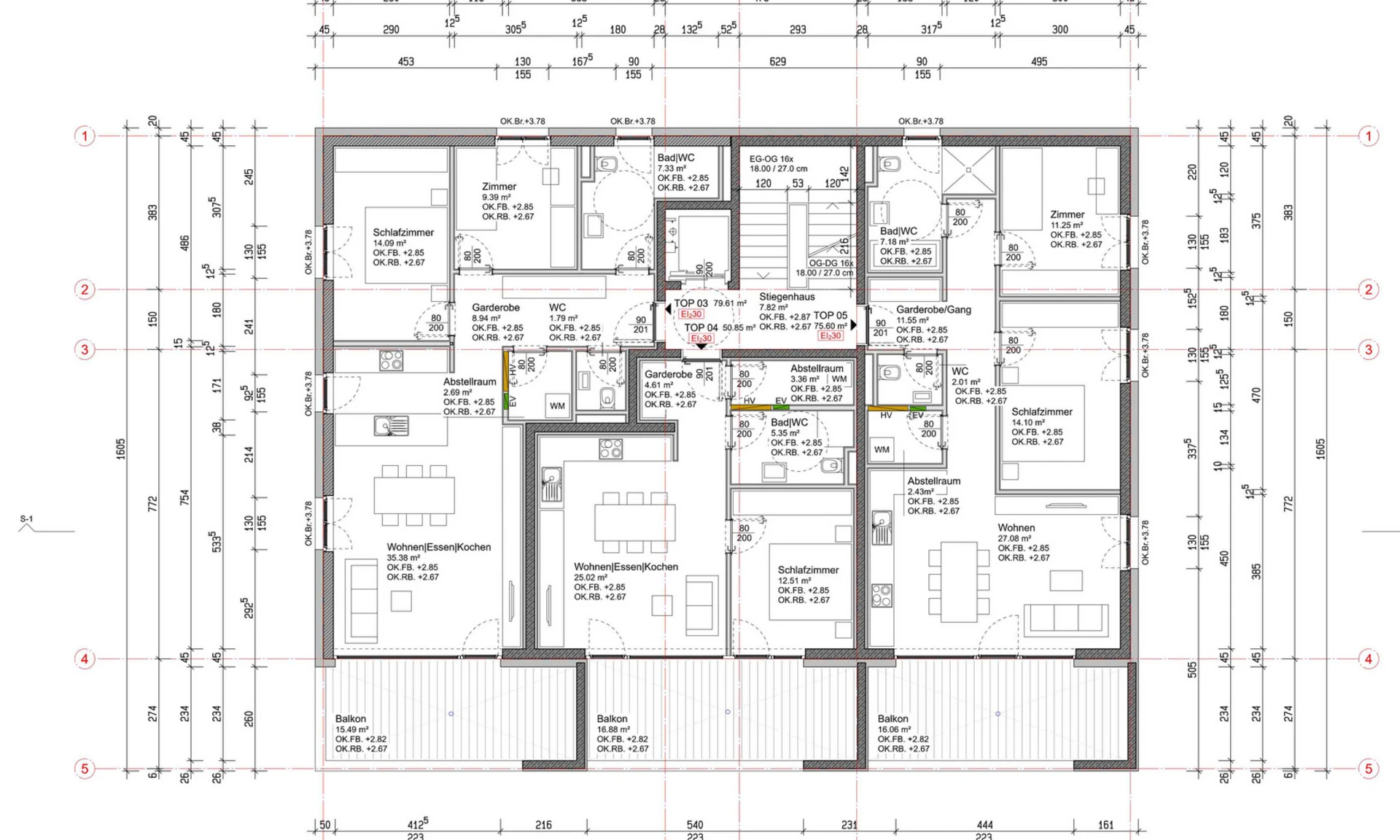
Rund 500 Meter vom Altacher Ortskern entfernt plant Wilhelm+Mayer in der Rheinstraße eine neue Kleinwohnanlage. Die Architektur besticht durch horizontale Fassadenelemente, die den klaren, eleganten Charakter des Gebäudes betonen.
Das Haus besteht aus acht Einheiten, die sich auf drei Etagen verteilen. Die Wohnanlage ist süd-ostseitig ausgerichtet – mit Balkonen für die oberen Stockwerke und Terrassen samt Gartenanteil für die beiden Wohnungen im Erdgeschoss. Die künftigen Bewohnerinnen und Bewohner der 2- bis 4-Zimmer-Wohnungen erwartet zudem ein naturnaher Außenbereich. In Verbindung mit einem modernen Energie- und Heizsystem sowie einer qualitätsbewussten Verarbeitung hochwertiger Materialien in den Einheiten, erfüllt die Wohnanlage die Anforderungen an modernes Wohnen von morgen bereits heute.
FAKTEN:





















