
Wohnanlage Koblach Kutzen
Haben Sie Fragen?
Kontaktieren Sie uns
Wilhelm+Mayer Bau GmbH
Dr.-Alfons-Heinzle-Straße 38
6840 Götzis

Modernes Zuhause in neuem Wohnquartier
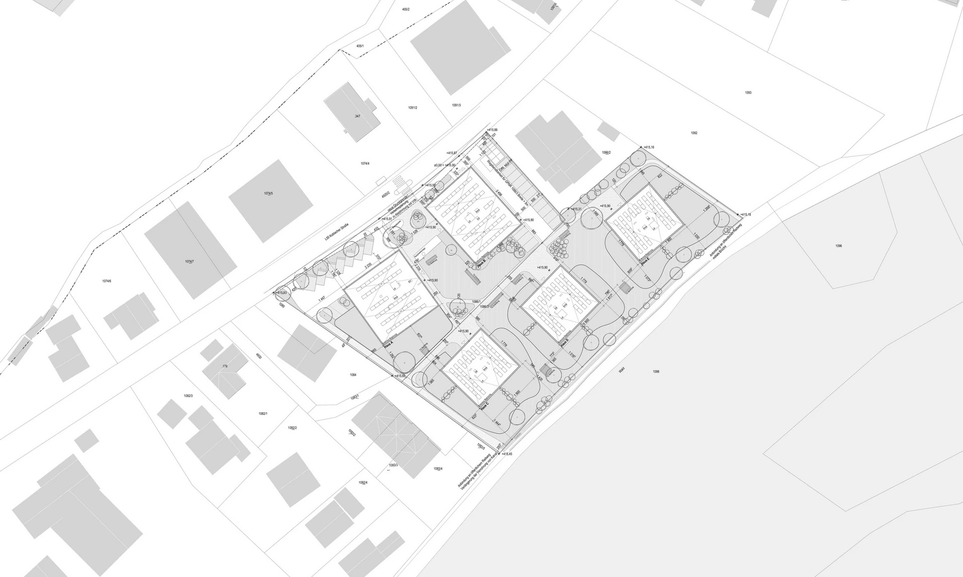
Am Ortsrand von Koblach entstehen auf einem rund 7.000 m² großen Areal sowohl private als auch gemeinnützige Mehrparteienhäuser samt öffentlichen Einrichtungen und Bereichen. Als Teil dieses Wohnquartiers realisiert Wilhelm+Mayer 26 Eigentumswohnungen (Haus C / D). Zudem besteht die Option zur Errichtung von 15 weiteren Einheiten (Haus E).
Die entsprechenden Gebäude wirken modern und zurückhaltend. Eine Putzfassade mit Holzfenstern sowie Loggien prägen das Erscheinungsbild. In puncto Energie sind Bauweise und Ausstattung am Puls der Zeit. Ob mit dem Auto oder Bus, das Zentrum von Koblach ist nur wenige Minuten von der Wohnanlage entfernt. Auch die Kummenberg-Region oder das Vorderland sind schnell erreichbar. Die Nähe zur Schweiz ist ideal für Grenzgänger.
FAKTEN:











